Finansowanie
Skonsultuj bezpłatnie swój kredyt hipoteczny z ekspertem kredytowym mFinanse

Marcin Szumicki
EKSPERT KREDYTOWY

Barbara Janicka
EKSPERT KREDYTOWY


Wybierz apartament
Budynek 1
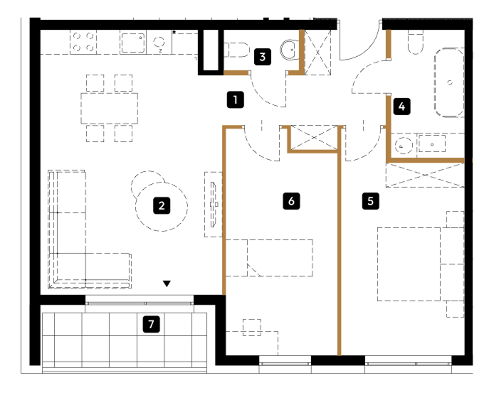
M5.07
3 pokoje,
68.12m 2
801 935zł
Dostępne
Piętro:
- 0
- 1
- 2
- 3
- 4
- 5
- 6
Budynek 1
M6.03
5 pokoje,
119.6m 2
1 883 680zł
Dostępne
Piętro:
- 0
- 1
- 2
- 3
- 4
- 5
- 6
Masz pytania?
Skontaktuj się z naszym działem sprzedaży lub zostaw numer telefonu / email.
Nasz doradca odpowie na Twoje zgłoszenie i przedstawi szczegóły inwestycji.


